The MANOR Collection
The Claremont
< back to Hickory Falls
More from the Manor Collection: The Lynhurst | The Evermay
<
>
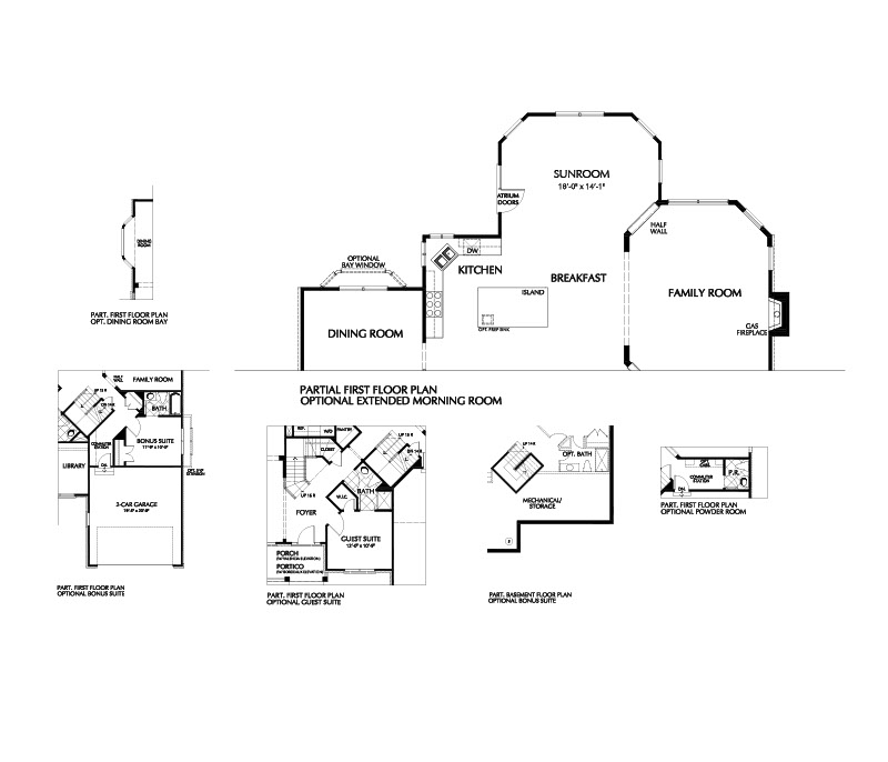
Floorplans click to enalrge
x
DOWNLOAD FLOORPLANS