Townhome-Condominiums
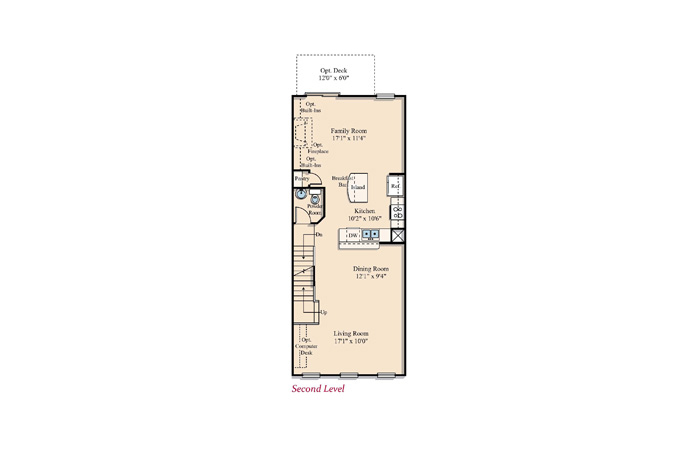
The Danforth
< back to Potomac Crest
More Townhome-Condominiums: The Asbury | The Bromley | The Crestwick
Floorplans click to enalrge
<
>
x
DOWNLOAD FLOORPLANS