The MANOR Collection
The Davenport
< back to Foxmont
More from the Manor Collection: The Beaumont
<
>
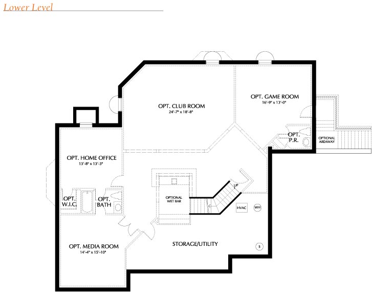
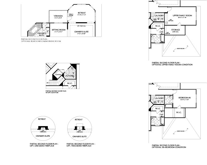
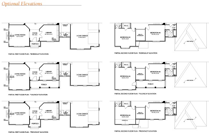
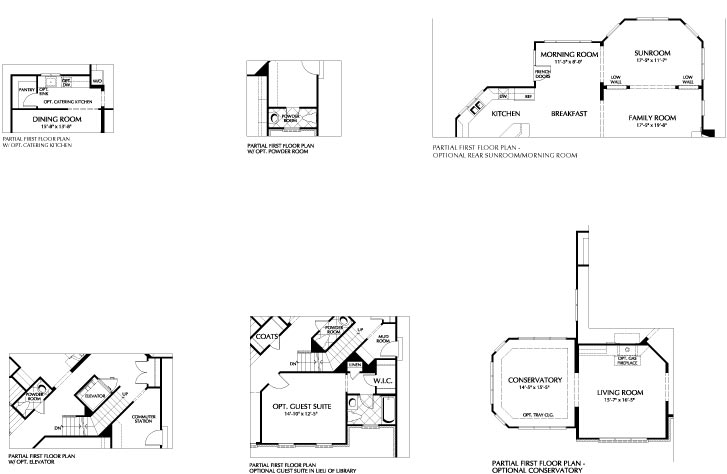
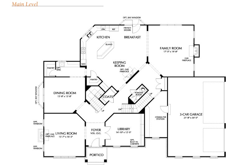
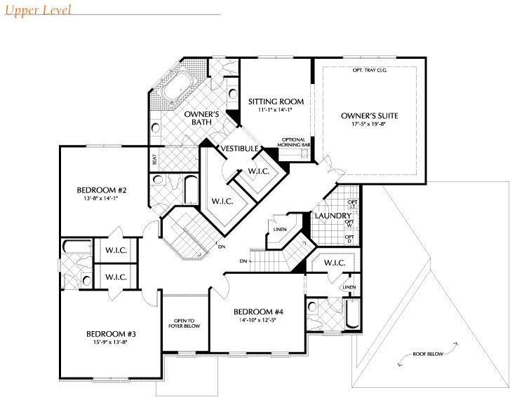
Floorplans click to enalrge
x
DOWNLOAD FLOORPLANS