The Veranda Collection
The Norbury
< back to Turtle Point
More from the Veranda Collection: The Jamison | The Somerville | The Granville | The Drayton
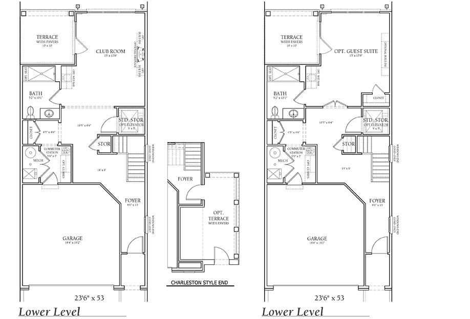
Floorplans click to enalrge
<
>
x
DOWNLOAD FLOORPLANS